Mieszkanie na sprzedaż Katowice, Centrum

4 pokoje
146.57 m²
17 397,83 zł/m2
26 piętro
ATP-MS-1595
Oblicz ratę kredytu

2 550 000 zł

Mieszkanie na sprzedaż
Oferta specjalna

Szczegóły oferty

Symbol oferty ATP-MS-1595
Powierzchnia 146,57 m²
Powierzchnia użytkowa [m2] 146,57 m²
Liczba pokoi 4
Rodzaj budynku apartamentowiec
Opłaty w czynszu CO, fundusz remontowy, ochrona
Piętro 26
Liczba pięter w budynku 36
Garaż garaż
Stan lokalu do wykończenia
Mies. czynsz admin. 1 700 PLN
Okna aluminium
Winda tak

Opis nieruchomości


--------- Katowice, Olimpijska!! ----------

Zamieszkaj na szczycie Katowic – w najwyższym budynku mieszkalnym miasta, skąd roztacza się niesamowity widok na całą panoramę.

Prestiżowa lokalizacja, nowoczesna architektura i wyjątkowe udogodnienia czekają na Ciebie w tym unikalnym apartamencie na 29-tym piętrze. To niepowtarzalna okazja, by zamieszkać w miejscu, które łączy komfort, luksus i panoramiczną przestrzeń.

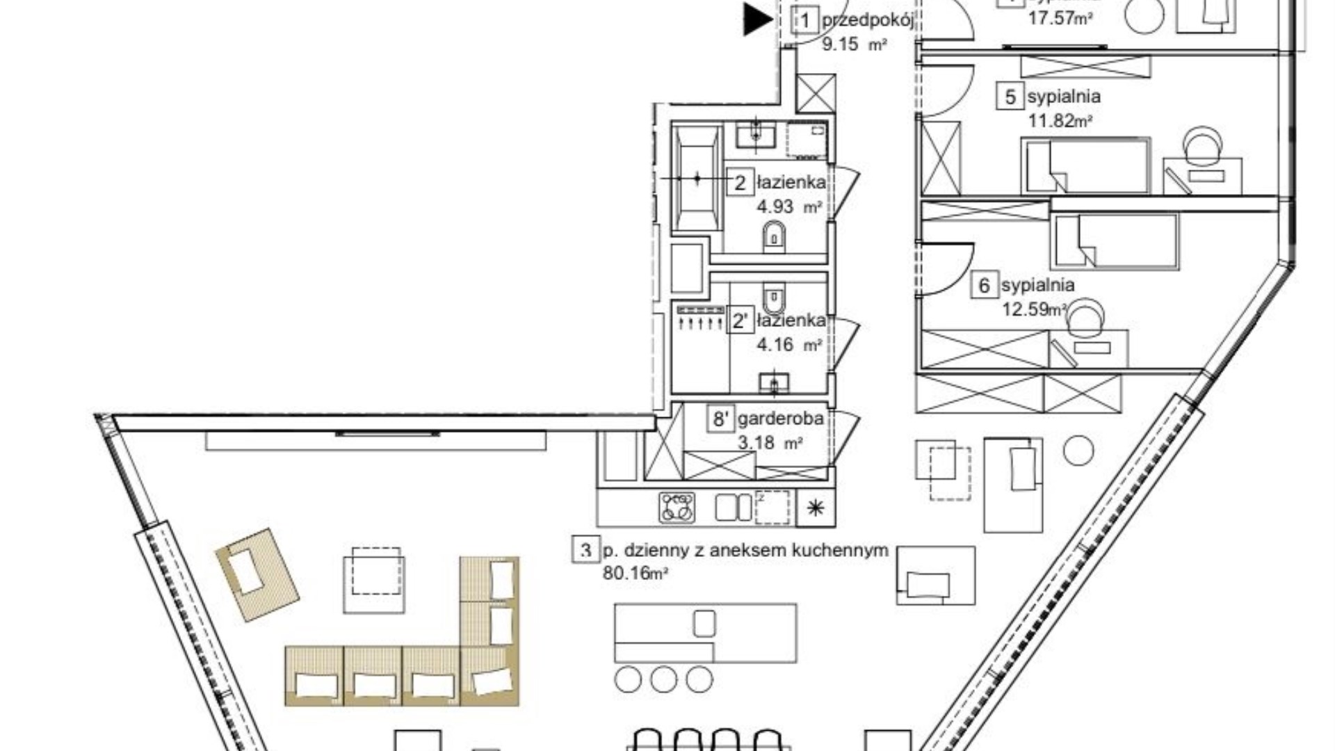
Apartament o powierzchni 146,57 m² to przestronna i funkcjonalna przestrzeń, w skład której wchodzą:

  • ogromny salon z aneksem kuchennym (okoł0 80m2), idealny na rodzinne spotkania i relaks,
  • trzy komfortowe sypialnie, w tym jedna o powierzchni 17,81 m², z własną garderobą (2,11 m²),
  • dwie duże łazienki,
  • dodatkowa garderoba i przestronny przedpokój, zapewniające wygodę i funkcjonalność na co dzień.

Widok? Absolutnie zapierający dech w piersiach – kierunki wschód, południe i zachód zapewniają nieustanny dostęp do pięknych krajobrazów, a taras widokowy na 35. piętrze to miejsce, gdzie można delektować się panoramą miasta na wyciągnięcie ręki.

Technologia i komfort: Ogrzewanie nawiewowe z miejskiej sieci, z systemem podłogowym, gwarantuje przyjemny klimat przez cały rok.

Cena sprzedaży 2 550 000pln.

Istnieje także możliwość zakupu dwóch dodatkowych miejsc w cenie 100 000pln. Mozliwość zakupu również komórki lokatorskiej w cenie 20 000pln.

Termin realizacji: planowane oddanie inwestycji na listopad/grudzień 2025 roku.

Możliwa sprzedaż na zasadach cesji umowy deweloperskiej- Podana cena jest brutto, a kupujący nie płaci podatku PCC 2%.

Dodatkowe koszty to opłaty notarialne i wynagrodzenie pośrednika.

Zapraszam do kontaktu.

Arek Chrabaszcz

Art Property



 

Lokalizacja nieruchomości

Kalkulatory

Kalkulator kredytowy

Wysokość raty

PLN
%

Kalkulator kosztów

Podatek od czynności cywilno-prawnych

Taksa notarialna
(opłata notarialna)

Wniosek o wpis do WKW

VAT od prowizji
agencji nieruchomości

Vat od taksy notarialnej
(opłaty notarialnej)

Prowizja agencji nieruchomości

Wypisy aktu notarialnego

Razem

Uwaga: mogą wystąpić dodatkowe opłaty za założenie księgi wieczystej oraz ustanowienie hipoteki.

PLN
PLN
PLN
PLN
PLN
PLN
%
PLN

Proszę wprowadzić poprawne imię i nazwisko
Proszę wprowadzić poprawny numer telefonu
Proszę wprowadzić poprawny adres e-mail
Proszę zaznaczyć wymagane zgody
Rozwiąż równanie:
30 7
Niepoprawny wynik